Volver
SOLICITAR VISITA
REFERENCIA: 1416/476 - Piso en venta en Berruguete / Madrid (Madrid).
- Precio de Venta: 294.000 €
Piso con patio privado en edificio moderno de 2018 – Calle Panizo, Tetuán (Berruguete)
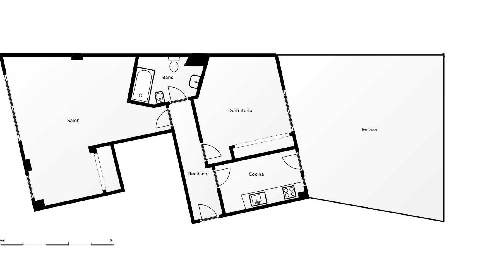
Se vende vivienda en planta baja de 81 m² construidos, ubicada en un edificio moderno construido en 2018, en una céntrica calle del barrio de Berruguete (Tetuán).
El piso cuenta con una habitación doble, un baño completo, cocina independiente con salida directa a un patio privado de 22 m² y un luminoso salón.
Dispone además de trastero de 5,5 m² y aire acondicionado por conductos en todas las estancias.
La vivienda se encuentra actualmente alquilada, con contrato de alquiler en vigor hasta diciembre de 2029 con una renta mensual de 1.100 €, por lo que resulta una interesante opción como inversión, en un edificio prácticamente nuevo y con excelentes calidades.
Ubicación muy cómoda, próxima a comercios, transporte público y todos los servicios del barrio de Tetuán.
En los próximos días publicaremos el tour virtual junto con planos 2D y 3D
No dudes en venir a verlo o en llamarnos para resolver cualquier duda. Asesoramiento en compraventa, alquiler y financiación. Estamos comprometidos con nuestros clientes, con nuestro trabajo y con nosotros mismos. Transparencia total. *Gastos de escrituración, registro, impuestos y honorarios de intermediación no incluidos.
Se vende vivienda en planta baja de 81 m² construidos, ubicada en un edificio moderno construido en 2018, en una céntrica calle del barrio de Berruguete (Tetuán).
El piso cuenta con una habitación doble, un baño completo, cocina independiente con salida directa a un patio privado de 22 m² y un luminoso salón.
Dispone además de trastero de 5,5 m² y aire acondicionado por conductos en todas las estancias.
La vivienda se encuentra actualmente alquilada, con contrato de alquiler en vigor hasta diciembre de 2029 con una renta mensual de 1.100 €, por lo que resulta una interesante opción como inversión, en un edificio prácticamente nuevo y con excelentes calidades.
Ubicación muy cómoda, próxima a comercios, transporte público y todos los servicios del barrio de Tetuán.
En los próximos días publicaremos el tour virtual junto con planos 2D y 3D
No dudes en venir a verlo o en llamarnos para resolver cualquier duda. Asesoramiento en compraventa, alquiler y financiación. Estamos comprometidos con nuestros clientes, con nuestro trabajo y con nosotros mismos. Transparencia total. *Gastos de escrituración, registro, impuestos y honorarios de intermediación no incluidos.
- Calificación consumo de energía: C.
- Consumo de energía (kwh/m2 año): 80.
- Calificación de emisiones CO2: C.
- Emisiones CO2 (kg CO/m2 año): 14.
- Piso: bajo.
- Plantas edificio: 3.
- Bloque: 19.
- Año de construcción: 2.018.
- Área total construida: 81 m2.
- Área terraza: 22 m2.
- Habitaciones: 1.
- Baños: 1.
- Armarios empotrados: 1.
- Ascensores: 1.
- Estado de conservación: buen estado.
- Tipo calefacción: individual.
- Detalles calefacción: Gas Natural.
- Agua caliente: individual.
- Aire acondicionado: frío.
- Interior/exterior: exterior.
- Orientación: noroeste.
- Amueblado: amueblado.
- Tendedero: descubierto.
- Comunidad: 133 €.
- IBI: 440 €.
- Equipamiento: trastero.
- Puertas: madera lacada.
- Ventanas: PVC, persiana plástico/pvc.
- Suelos: tarima, gres, otros.
Datos de contacto
- Oficina: 1416 - Alfa Familiar
- Teléfonos: 647 326 089 / 620 728 110
- Email: [email protected]
- Web: alfafamiliar.com
Localización
Propiedad en Calle del Panizo
Hoja informativa. No incluidos gastos de Escrituración, Registro e Impuestos.
La oficina 1416, C/ San Jaime 1 - despacho 9 (Madrid - Madrid) con nombre fiscal Dapeinma Familiar, S.L. y CIF: B13753967
es responsable de los datos e información publicitados de este inmueble.
La oficina 1416, C/ San Jaime 1 - despacho 9 (Madrid - Madrid) con nombre fiscal Dapeinma Familiar, S.L. y CIF: B13753967
es responsable de los datos e información publicitados de este inmueble.
















